Zeichnungen drucken

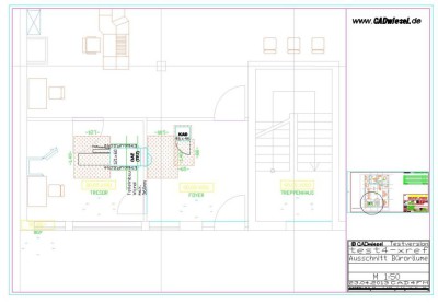
Dieses Programm erlaubt es Ihnen schnell aus dem Modellbereich einen Ausschnitt zu drucken, ohne ein Drucklayout mit Planrahmen und Planstempel anlegen zu müssen. Das Programm ist so ausgelegt, das der Anwender mit minimal 3 Klicks einen Zeichnungsausschnitt ausdrucken kann, der einen Planrahmen, eine Planübersicht und einen Planstempel enthält.

1. Drucker aus Pulldown Liste wählen
2. Papierformat und Farbe wählen (optional)

3. Massstab einstellen und zu plottenden Ausschnitt wählen
->Bei der Einstellung 'Ohne Massstab' kann der Anwender ein Fenster duch 2 Eckpunkte bestimmen. Wird ein vorgegebener Massstab aus dem Pulldown gewählt, so wird dem Anwender nach Klick auf den 'Fenster wählen<' Button ein in der Größe vordefiniertes Fenster zum Plazieren auf dem Bildschirm angeboten.

->Der OK Button wechselt seine Farbe von Rot auf Grün
4. Kommentartexte für Planstempel eingeben (optional)
4. Anzahl der zu druckenden Kopien angeben (optional)

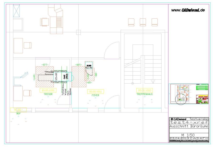
OK Button startet den Druckvorgang. Es wird ein Layout angelegt, die Vorlagenzeichnung 'plot.dwg' eingefügt, alle Ausschnitte positioniert, der Planstempel ausgefüllt und an den Drucker geschickt.
Am Ende des Programms wird die Zeichnung wieder so hinterlassen, wie sie es vor starten des Programmes war.